The exterior areas are formed with respect to nature and the environment and include swimming pool, barbecue and a sun terrace with a pergola on the pool level, plus a smaller pergola on the middle level balcony.
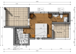
Each villa (approx.94 m2) is ideal for 2 to 6 people, arranged on three floors. The main entrance on the first floor leads to a comfortable living room with a fireplace while adjoined there is a tastefully furnished dining area with a fully equipped kitchen. Both rooms share a large balcony that offers an unobstructed view of Mirabello Bay amidst the Cretan landscape.
A staircase leads to the ground floor that includes two bedrooms suitable for single or double bed, sharing a bathroom with shower and washing & dryer machine installation. The second floor is occupied by one more double bed bedroom with private shower & WC. A sun terrace with pergola provides views over the mesmerizing blue of Aegean Sea.
All villas are equipped with manually controlled A/C, Solar boilers, satellite TV, Wi-Fi internet access, home cinema, telephone and electronic safe.
The private, 24 m2, swimming pool is placed in front of the ground floor, offering a panoramic view of the landscape. It is part of a spacious 140m2 sun terrace with pergola and BBQ for unforgettable memories. On the front end of each villa, lies its private garden, filled with Cretan herbs and various flowers and trees to excite and stimulate your sense of smell.
A car is mandatory for transportation from and to the villas and experiencing Elounda and the surrounding areas to the fullest.














